首页>声学整装>体育场馆
辽宁鞍山岫岩县体育馆声学设计工程
时间:2021-01-05来源:本站浏览:1178


         岫岩县体育馆位于辽宁省鞍山市,占地7.92万平方米,总建筑面积1.13万平方米,形状是矩形,可容纳3000名观众,主要功能为比赛,兼顾体育娱乐、会议等功能,作为岫岩县体育赛事开展及群众文化生活的重要场所之一。

一、声学装饰方案

1、建筑声学与装饰的结合

良好的音质效果对于体育馆来说是必须的,因为适当的语言清晰度是保证场所内正常使用的前提条件之一。声学材料的合理布置是使场馆音质改善的最有效的手段,建筑声学与室内装饰有机结合,装饰性与实用性兼而有之。

本方案从建筑声学角度介入设计,在建声原理的基础上通过严谨的计算,确定声学装饰材料的选型、布局和安装构造,控制场所内的混响时间,为空间装饰设计及施工工艺提供科学有效的依据。

2、场所声学计算初始条件

体育馆平面呈一矩形,剖面为不规则几何形,馆内顶面钢架距离建筑地面最高高度为35m,纵长56.7m。馆内有效容积为79185m3,总表面积为11340㎡,预计容纳人数3000人。

二、顶面方案

体育馆的使用要求和观演要求决定了其最低净高不会太低,这使得体育馆容积偏大,室内混响时间更长,并且往往为了节省吊顶费用,减轻顶棚结构负荷,通常会采用暴露网架的做法,没有了整体性的吊顶对中低频吸收,达到同样的混响时间需要用更多的吸音材料。因此,对于顶棚的声学处理,以利用高效率的吸音材料进行吸声处理为主。设计拟用强吸声的空间吸声体吊挂于顶棚钢架之下,距离钢架1m,使用数量1800㎡。

三、墙面方案

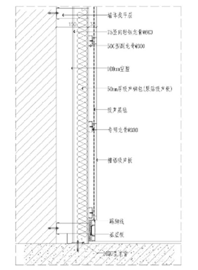
体育馆容积大,且每座容积较大,很多情况下会部分观众缺席。因此,观众吸声所占比率较小,为控制馆内混响时间必须使用较多的吸音材料或者结构。并且大多数体育馆由于座位升起、墙身开窗面积过大等状况,场馆内墙面可做声学处理面积少,为此须充分利用好可做吸声的墙面。设计拟用槽铝吸声结构对墙面进行声学处理,使用面积4000㎡,后填≥50mm厚吸声棉,预留空腔≥100mm。

槽铝吸声结构竖剖图

槽铝吸声结构横剖图

体育馆顶面声学材料布置示意图

体育馆墙面声学材料布置示意图

空间吸声体性能参数

结构:1.0mm厚以上铝质边框内置高密度吸声棉,外包不燃玻纤布;

有害物质限量符合《建筑材料放射性核素限量》的全部技术指标的要求;

材料燃烧性能等级:A级;

环保等级达到《室内装饰装修材料人造板及其制品中甲醛释放限量》标准E1级;

产品质量轻,对屋面结构荷载负担小,搬运及安装方便。

空间吸声体产品图片

槽铝吸声结构性能参数

结构:50mm厚吸声棉包+吸声黑毡+槽铝吸音板

有害物质限量符合《建筑材料放射性核素限量》的全部技术指标的要求;

材料燃烧性能等级:A级;

环保等级达到《室内装饰装修材料人造板及其制品中甲醛释放限量》标准E1级;

防潮:优质铝材加工而成,防潮、防腐性能良好,易于清洁保养;

槽铝吸声结构产品图片

岫岩县体育馆施工图-1

岫岩县体育馆施工图-2

Copyright © 2018-2026 广东天戈声学集团有限公司 All Rights Reserved. 粤ICP备2024247371-1 技术支持:富为网科